Funktion: Studie Wohnbau
Ort: Wien, W
Art des Bauvorhabens: Neubau
Status: in Planung

Wohnhausanlage 22., Oberes Hausfeld
Studie [Wien, W]
Funktion: Studie Wohnbau
Ort: Wien, W
Art des Bauvorhabens: Neubau
Status: in Planung
Funktion: Studie Wohnbau Ort: Wien, W Art des Bauvorhabens: Neubau Status: in Planung
Studie: 2016
Projektphasen: Vorentwurf, Entwurf, Einreichung
BGF: 11.188 m² oberirdisch
Auftraggeber:innen:
KALLCO Development GmbH & Co
Architektur:
PLOV Architekten ZT GmbH
Mitarbeit:
Adrienn Holnthoner, Markus Illetschko, Manfred Thallner
Konsulent:innen:
Katzkow&Partner [Fachplanung]
Paul Kandl [Freiraum]
Visualisierung:
Expressiv
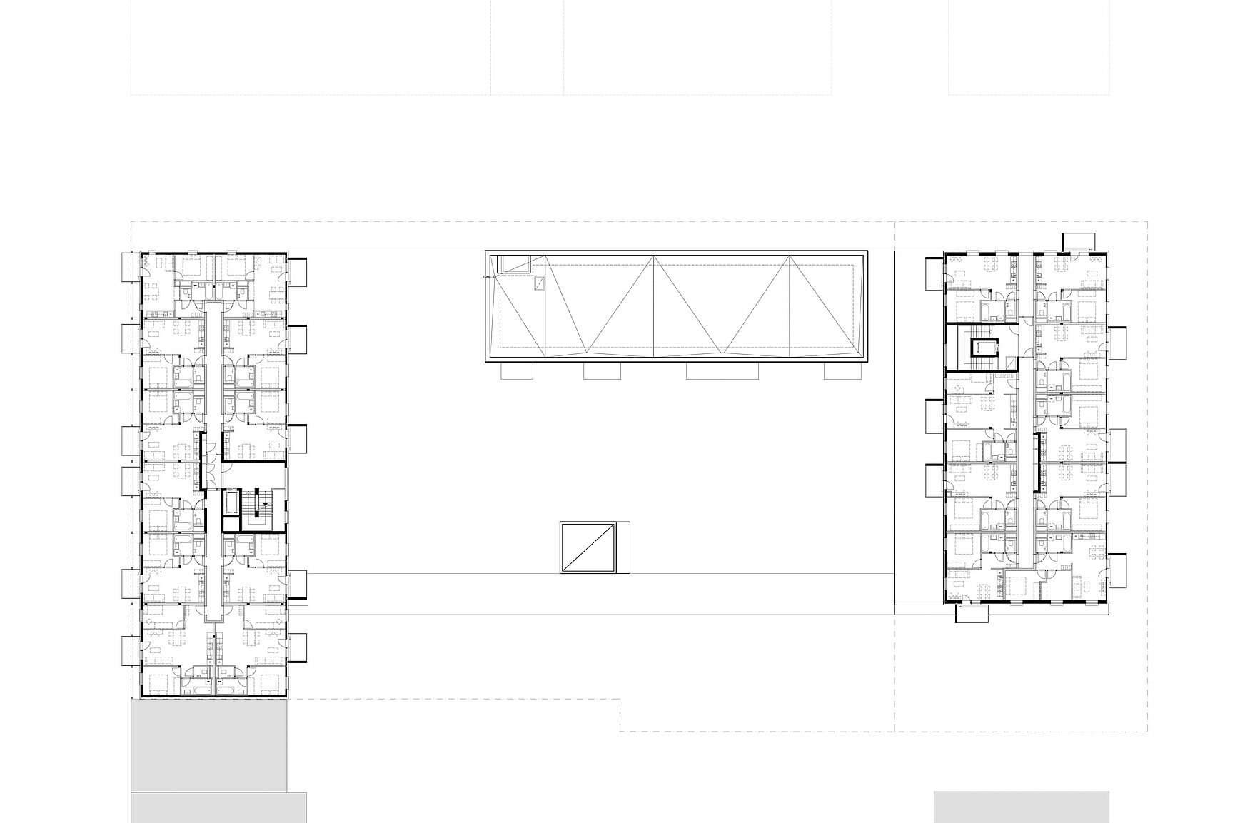
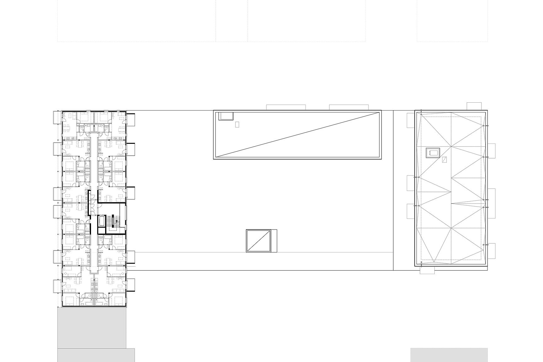
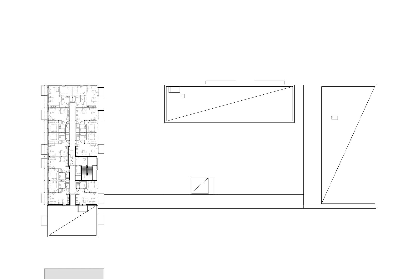
Die Bauplätze K2 + K3 gliedern sich in einen durchgängigen zweigeschossigen Sockel sowie drei darauf sitzende Baukörper. Die Sockelzone verortet Gewerbeflächen und das Parkdeck. In den aufgesetzten Baukörpern sind Wohnungen geplant. In der nordwestlichen Ecke des Bauplatzes im Bereich der Einfahrt zum Parkdeck ist eine Vorhaltefläche für einen übergeordneten Mobility- Point vorgesehen (gem. Mobilitätskonzept).
Im Westen bildet ein neungeschossiger, aufgesetzter Baukörper einen Abschluss Richtung U-Bahntrasse und ist zugleich Puffer für die östlich gelegene Bebauung. Das vorgelagerte 'grüne Regal' wirkt hier als zusätzliche Pufferschicht für die dahinter liegenden Wohnungen und bildet zugleich eine attraktive Schauseite zur Bahn. Die zweigeschossigen, zur Franz-Wels-Gasse orientierten, Gewerbeflächen beleben die Erdgeschosszone.
Das dahinterliegende natürlich belichtet und belüftete Parkdeck schafft zum Baufeldinneren einen vom Straßenraum abgehobenen und halböffentlichen Hochgarten für die Bewohner:innen - nördlich und östlich eingefasst von zwei Baukörpern mit 3 bzw. 4 Geschoßen über dem Sockel.
In der Sockelzone im Osten des Bauplatzes K2 sind weitere Gewerbeflächen geplant. Dadurch wird auch im Osten des Bauplatzes zu einer Belebung und Frequentierung der Erdgeschosszone beigetragen.
Die Abmessungen und Gebäudehöhen sind widmungskonform geplant. Mit ausreichender Begrünung und einer bauplatzübergreifenden Freiraumplanung wird eine hohe und abgestimmte Aufenthaltsqualität am Baufeld K für die Nachbarschaft gewährleistet (die Freiräume der Bauplätze K1, K2 und K3 werden vom Büro Kandl Landschaftsplanung konzipiert).
Lärmschutzelemente sowie zusätzliche Begrünung des Parkdecks Richtung Süden schützen den ruhigen Hof und wirken als wertvoller Beitrag für ein angenehmes Mikroklima.









